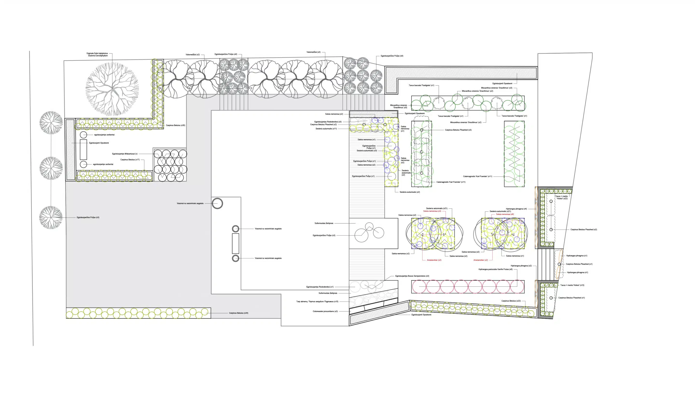
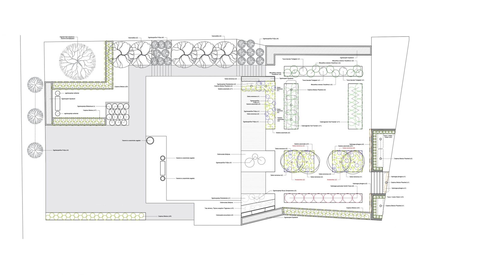
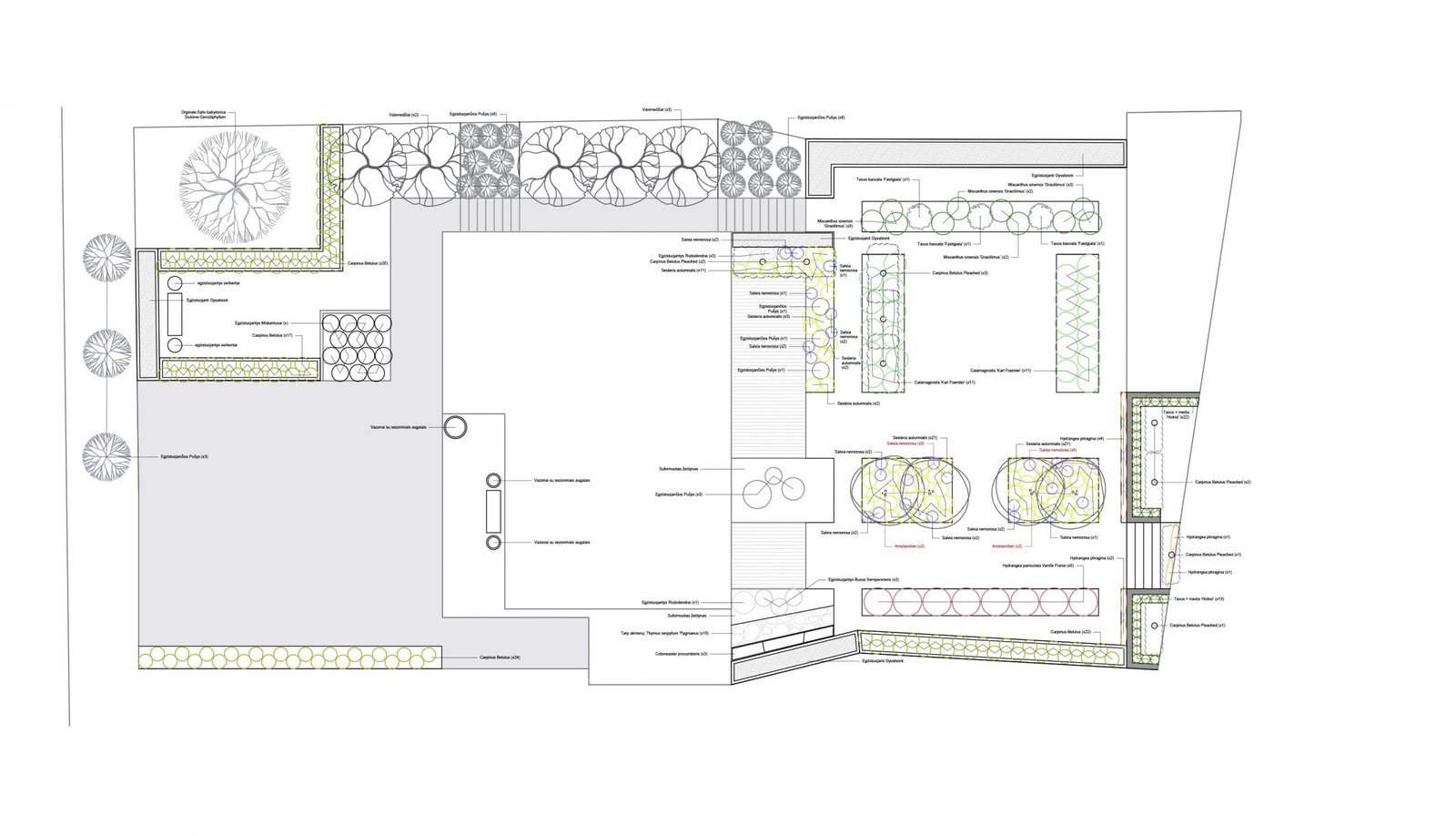
Modernus šeimos sodas
7 arų sklype jauna šeima norėjo susikurti jaukų sodą, kuris nereikalautų daug priežiūros. Šiam tikslui buvo pasitelktos pasikartojančios augalų grupės ir struktūriniai augalai, sukuriantys tvarkos jausmą.
Konceptas
Dažnai žmonės vengia sodinti augalus sklypo viduryje, bijodami sumažinti erdvę. Tačiau suskaidžius sklypą į atskirus kambarius erdvė vizualiai padidėja. Taip sukuriama optinė apgaulė. Pasivaikščiojimo takai, kurių kryptis nuolatos keičiama, leidžia žmogui klaidžioti po sodą ir pamatyti erdves iš skirtingu kampų, nesvarbu, kad jis labai mažas. Terasa ir kiti statiniai kaip pavėsines pratęsia namų erdvę, kurioje galima pietauti, švęsti ir žaisti. Dizaine panaudoti plokštuminiai medžiai, kurie sutaupo erdvę ir sukuria prabangos įspūdį.
